A Grand Heritage Estate in the Heart of London
GBP
24,000,000
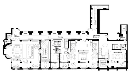
Situated in one of London’s most prestigious locations, this Grade II listed residence is a rare blend of historic grandeur and contemporary luxury. Nestled in the heart of Westminster, this 9717 sq. ft. masterpiece offers breathtaking panoramic views of some of London’s most iconic landmarks, redefining exclusive city living.
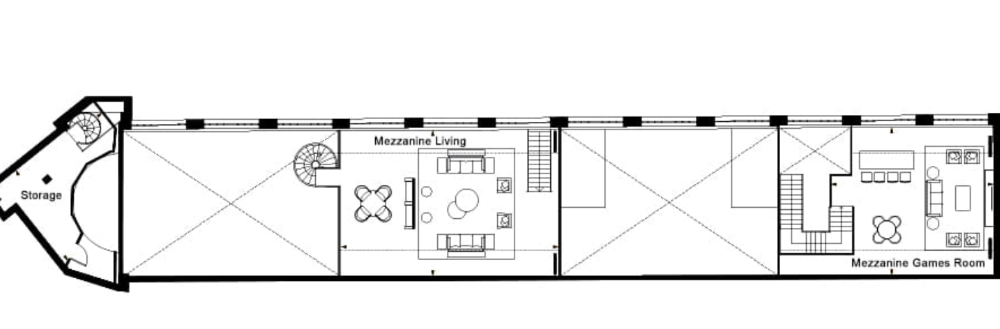
Occupying the 8th floor, this residence features five expansive bedrooms and eight elegantly appointed bathrooms, designed for those who demand sophistication, space, and privacy. A private courtyard garden provides a tranquil retreat, while access to world-class leisure amenities ensures a lifestyle of effortless indulgence.
Exclusive Features & Amenities:
Luxurious Leisure Facilities – Including a private pool, spa, gym, and cinema
24-Hour Concierge Service – Offering unparalleled convenience and security
Panoramic Views – Overlooking the historic and cultural landmarks of London
Heritage Architecture with Modern Refinement – A statement of timeless elegance
Private Courtyard Garden – A secluded escape in the heart of the city
A Residence of Distinction
Part of the exclusive Heritage Collection, this home has been expertly completed and is available for those who seek the pinnacle of London living. Combining history, prestige, and contemporary comfort, this is not just a residence—it is a legacy in the making.
SPECIFICATIONS
UK
London
Penthouse
Bedrooms
5
Bathrooms
8
Floor
8
902 m2
2025





























